$425,000 Sale
Listed 42 days ago
123 WESTBOURNE Road
· 5
· 3
· 2
· 1302.44
Key Facts
Key facts for 123 WESTBOURNE Road
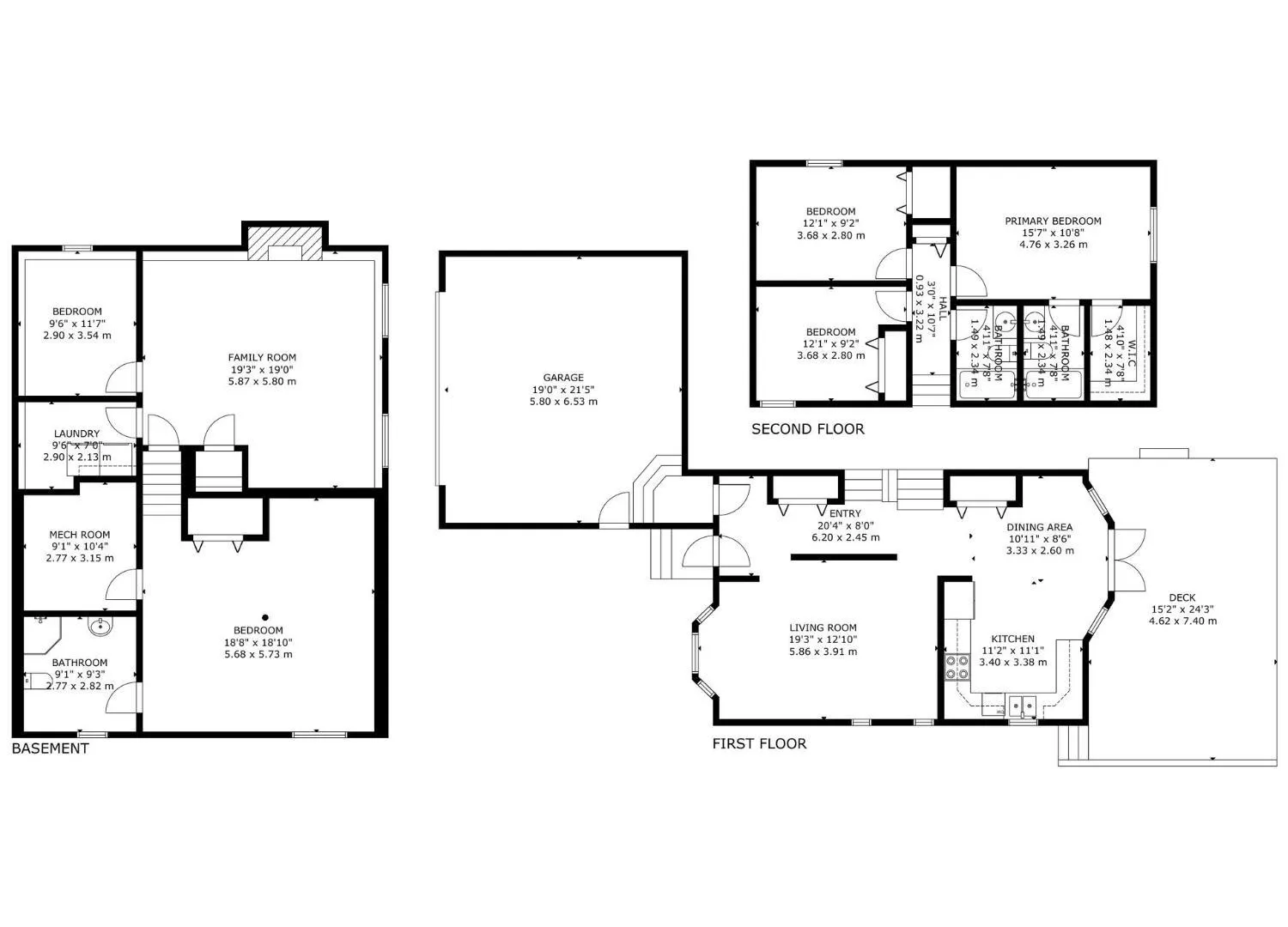
Property Type
House, 4 Level Split
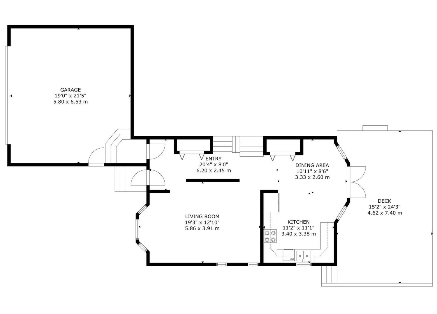
Parking
Double Garage Attached,Heated,Parking Pad Cement/Paved,RV Parking 2 garage, Double Garage Attached,Heated,Parking Pad Cement/Paved,RV Parking 4 parking
MLS®
E4456622
Size
1302.44 sqft
Basement
Full,Finished, Fully Finished
Listed on
-
Lot size
-
Tax
-
Days on Website
-
Year Built
1983
Maintenance Fee
-
Description
Charming 4-level-split with attached double garage (22Wx22L, heated, insulated) in West Grove. This 1,302 square foot (plus full basement) home features central air conditioning, hardwood flooring and upgrades throughout. On the main: spacious living room with large bay window, dining area with seco...nd bay window & deck access and an updated kitchen with stainless steel appliances and built-in dishwasher. Upstairs: 2 full bathrooms and 3 bedrooms including the owner’s suite with walk-in closet and 4-piece ensuite. Lower level: family room with electric fireplace, 4th bedroom/den and laundry room. Basement offers a 3-piece bathroom and flex space which could be used as a 5th bedroom with ensuite or rec room with bathroom. Beautiful, landscaped backyard with plenty of shade and privacy provided by mature trees. Outside boasts a large deck with gazebo, patio and an above ground swimming pool! Located near nature trails, Tri Leisure Centre, downtown Spruce Grove and all the amenities. Great opportunity!
Similar Properties (No results)
Courtesy of: Carson K Beier, Royal LePage Noralta Real Estate