$636,000 Sale
Listed 41 days ago
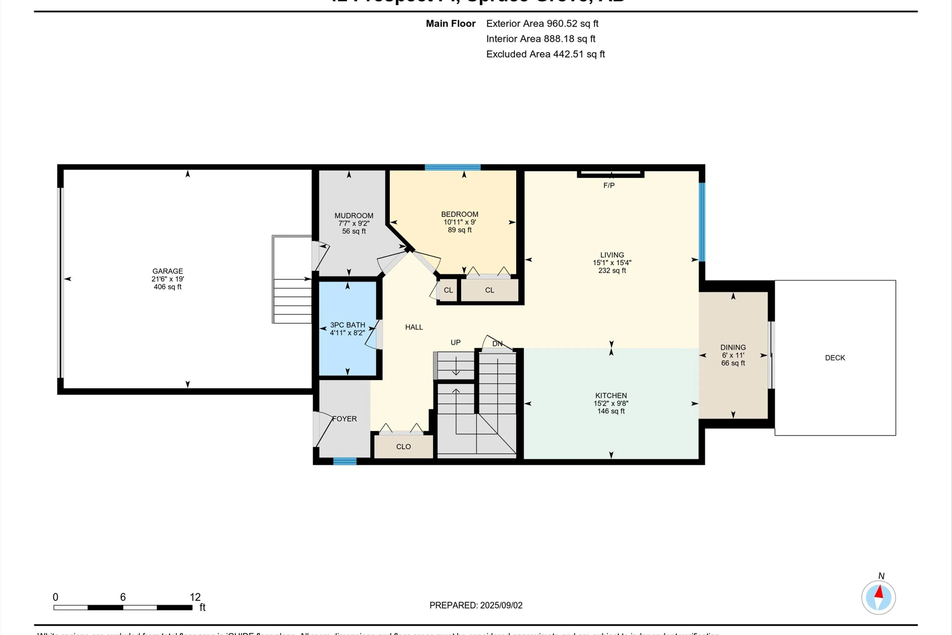
42 PROSPECT Place
· 5
· 3
· 2
· 2266.58
Key Facts
Key facts for 42 PROSPECT Place
Property Type
House, 2 Storey
Parking
Double Garage Attached,Insulated,EV Charging Station 2 garage, Double Garage Attached,Insulated,EV Charging Station 4 parking
MLS®
E4455766
Size
2266.58 sqft
Basement
Full,Unfinished, Unfinished
Listed on
-
Lot size
-
Tax
-
Days on Website
-
Year Built
2024
Maintenance Fee
-
Description
RARE 5 bedroom above grade home in family friendly community of Prescott! This home is LIKE new without the "new build" headaches of having to buy appliances, build a deck, complete landscaping, fencing, blinds, add A/C... everything is already DONE! If you've been looking for a home big enough for ...your busy family OR you have your parents living with you this is it! Main floor has 5th bedroom and a FULL bathroom. The home also features upgrades; customized kitchen with floating shelves, wall pantry, appliance garage, gas stove, EV charger in garage, A/C, walkout basement with 9' ceilings! Incredible value in this home; you can't build and finish it for this same price. Sellers are open to flexible/quick possession.
Similar Properties (No results)
Courtesy of: Jazmin K Laframboise, Exp Realty